Buat yang lagi cari2 desain gratis buat renov atau bangun rumah nya, bisa cek desain kita yang satu ini yaa.

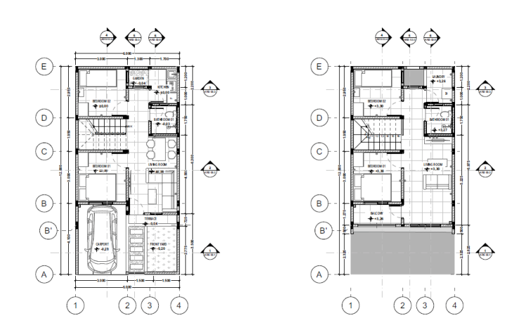
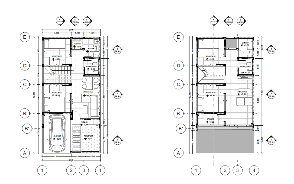
Rumah ini di desain diatas tanah 72m2 dan mempertimbangkan aliran Minimalis dan Modern Kontemporer. Didalam nya ada 4 kamar tidur, 2 kamar mandi, dan ga lupa ada laundry area. Semua kamar punya akses sirkulasi udara dan pencahayaan dari luar.

Emang bisa ruangan sebanyak itu di tanah 72? Bisa cuma memang agak sempit dikit, yang dikorbanin dapur yang jadi kecil. Kalau perlu dapur yang gede, bisa korbanin kamar tidur 1 di bawah untuk jadi dapur. Atau opsi lain bisa geser kamar mandi dan makan ruang keluarga.
Garasi dari desain ini juga tidak terlalu luas, jadi cuma bisa masuk mobil kecil aja (panjang 4m). Bisa diakalin dengan membuat pagar yang lebih maju dari batas tanah.
Tentu nya semua nya gratis, tinggal download aja di link dibawah ini :
Ini semua hasil gambar dari tim Renov Bandung. Dilarang menyebarkan dan mempergunakan desain ini untuk kepentingan komersil.
Untuk buka file format BiMX supaya bisa dilihat secara 3d di smartphone / PC, bisa donwload dulu aplikasi nya di









Kalau ada yang mau custom desain bisa kontak kita yaa, start from 50rb /m2 nya. Atau mau bangun desain ini, atau custom, bisa banget di kita.
